Igny (91)

47 logements

Résidence Saint-Honoré : entre tradition et modernité

Enclavée au cœur des espaces verts emblématiques de la Vallée de la Bièvre, la résidence Saint-Honoré s’intègre avec finesse dans son environnement.

Un projet respectueux du cadre bâti

Entre habitat pavillonnaire et aménagements contemporains, l’architecture du projet dialogue avec son contexte. Côté rue, la meulière fait écho aux constructions traditionnelles, préservant ainsi l’âme du quartier.

Une transition douce entre les échelles urbaines

En cœur d’îlot, la résidence adopte une typologie plus dense qui épouse le dénivelé naturel du terrain. Cette organisation permet de renforcer les liens avec le bâti existant et de créer une véritable intériorité commune, favorisant le bien-être des résidents.

Une belle illustration d’un urbanisme attentif et intégré, où chaque détail compte pour valoriser l’existant tout en proposant un cadre de vie contemporain et harmonieux.

I'M IN ARCHITECTURE
Façade de matérialité
I'M IN ARCHITECTURE
Façade de matérialité
I'M IN ARCHITECTURE
Vue sur la réalisation des logements en meulière sur rue à l’est du projet collectif et passage piéton
I'M IN ARCHITECTURE
Vue sur la réalisation des logements et passage piéton
I'M IN ARCHITECTURE
Perspective depuis le jardin
I'M IN ARCHITECTURE
Perspective depuis le jardin
I'M IN ARCHITECTURE
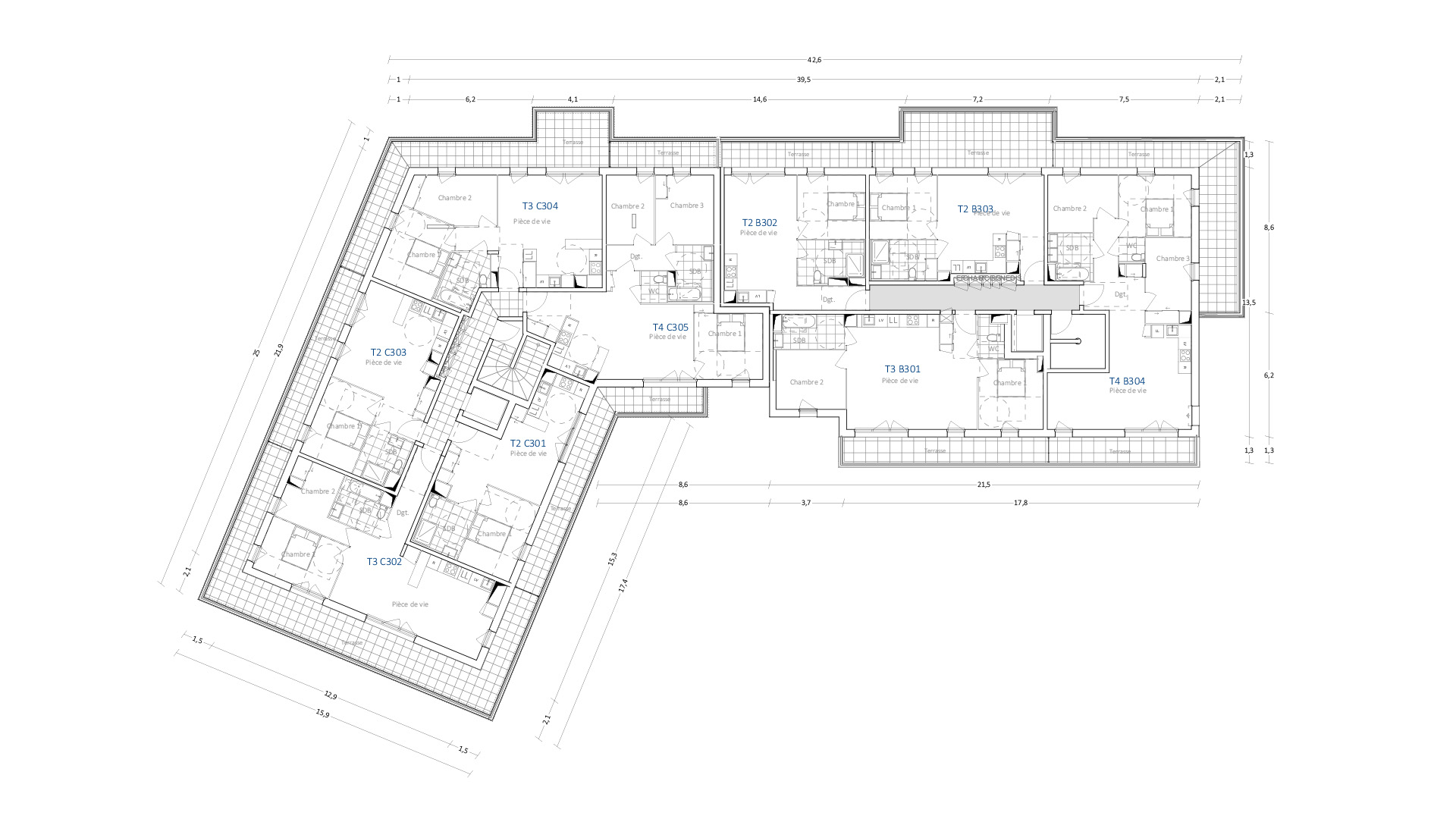
Plan général de l'attique