Maurecourt (78)

Extension d'une maison de ville

I'M IN ARCHITECTURE
Extension et terrasse réalisées
I'M IN ARCHITECTURE
Extension et terrasse réalisées
I'M IN ARCHITECTURE
Intérieur de la maison
I'M IN ARCHITECTURE
Intérieur de la maison
I'M IN ARCHITECTURE
Entrée
I'M IN ARCHITECTURE
Séjour
I'M IN ARCHITECTURE
Projection de l'extension et de la terrasse
I'M IN ARCHITECTURE
Plan de rez-de-chaussée existant
I'M IN ARCHITECTURE
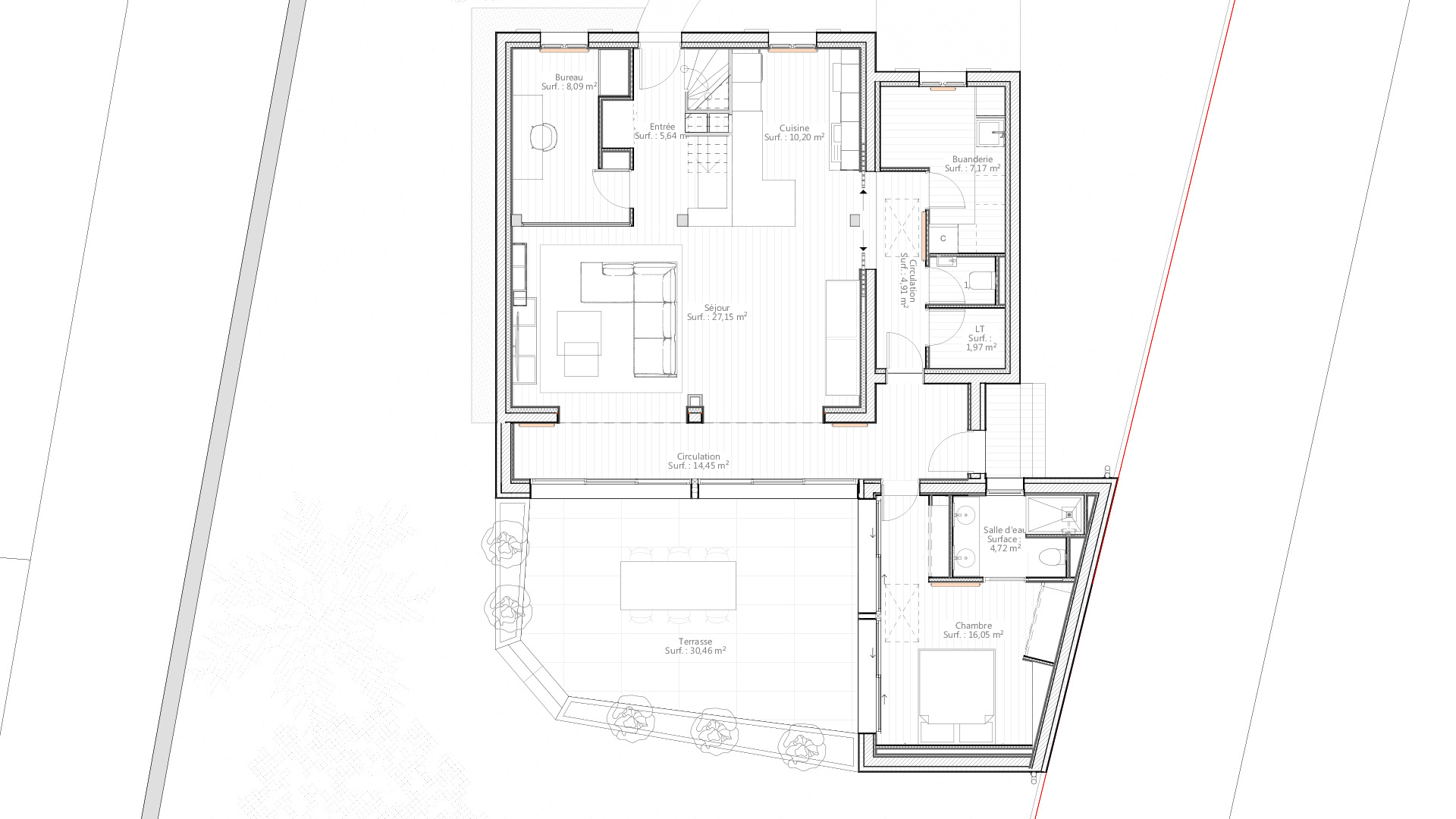
Plan de rez-de-chaussée projet