Les Deux-Alpes (38)

Réhabilitation d'un appartement

Dans cette station emblématique des Alpes, nous avons entièrement repensé un appartement de 30 m² pour en faire un espace modulable, fonctionnel et lumineux.
L’objectif : offrir confort et générosité dans une surface réduite, sans jamais sacrifier la sensation d’espace.

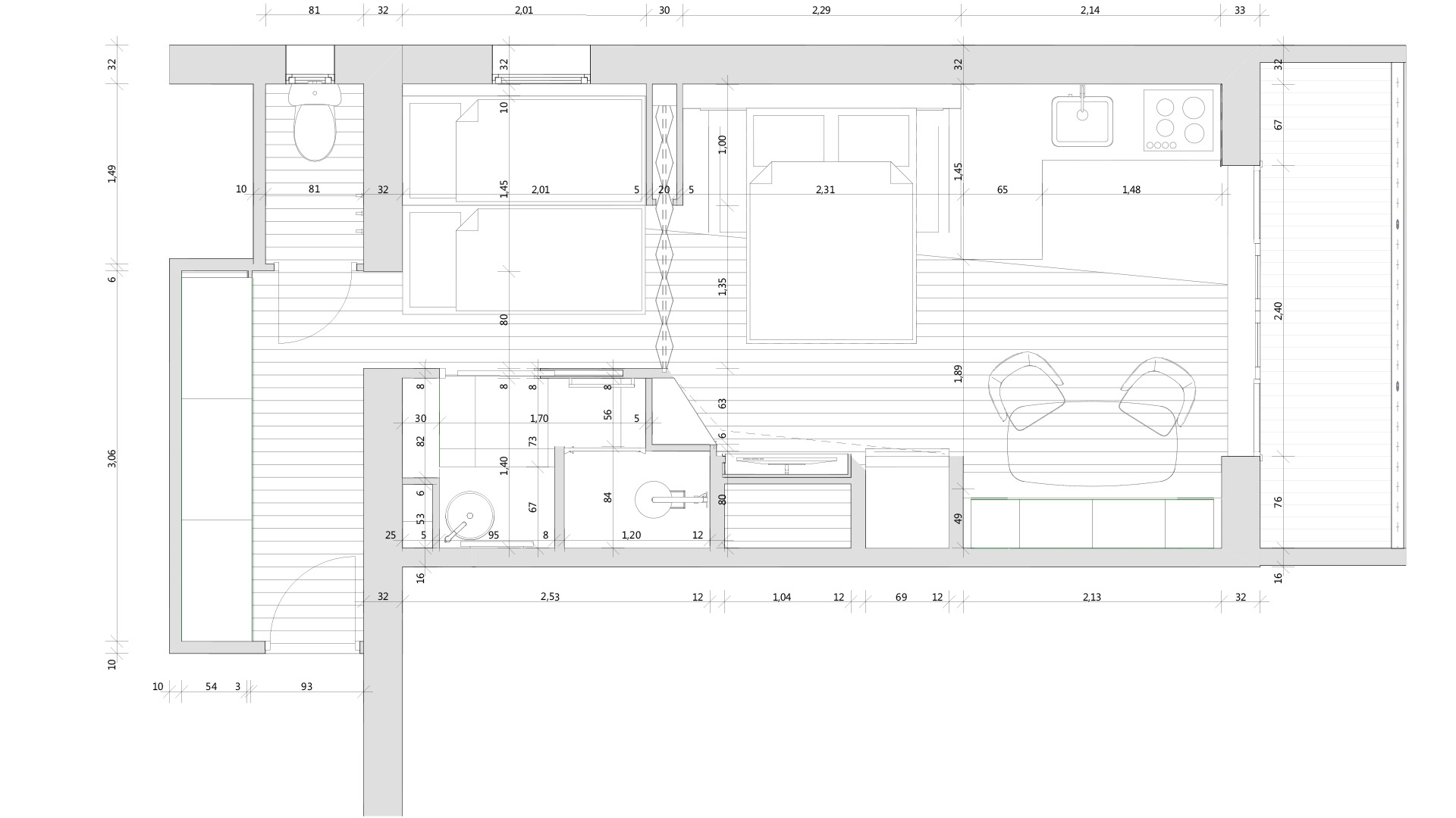
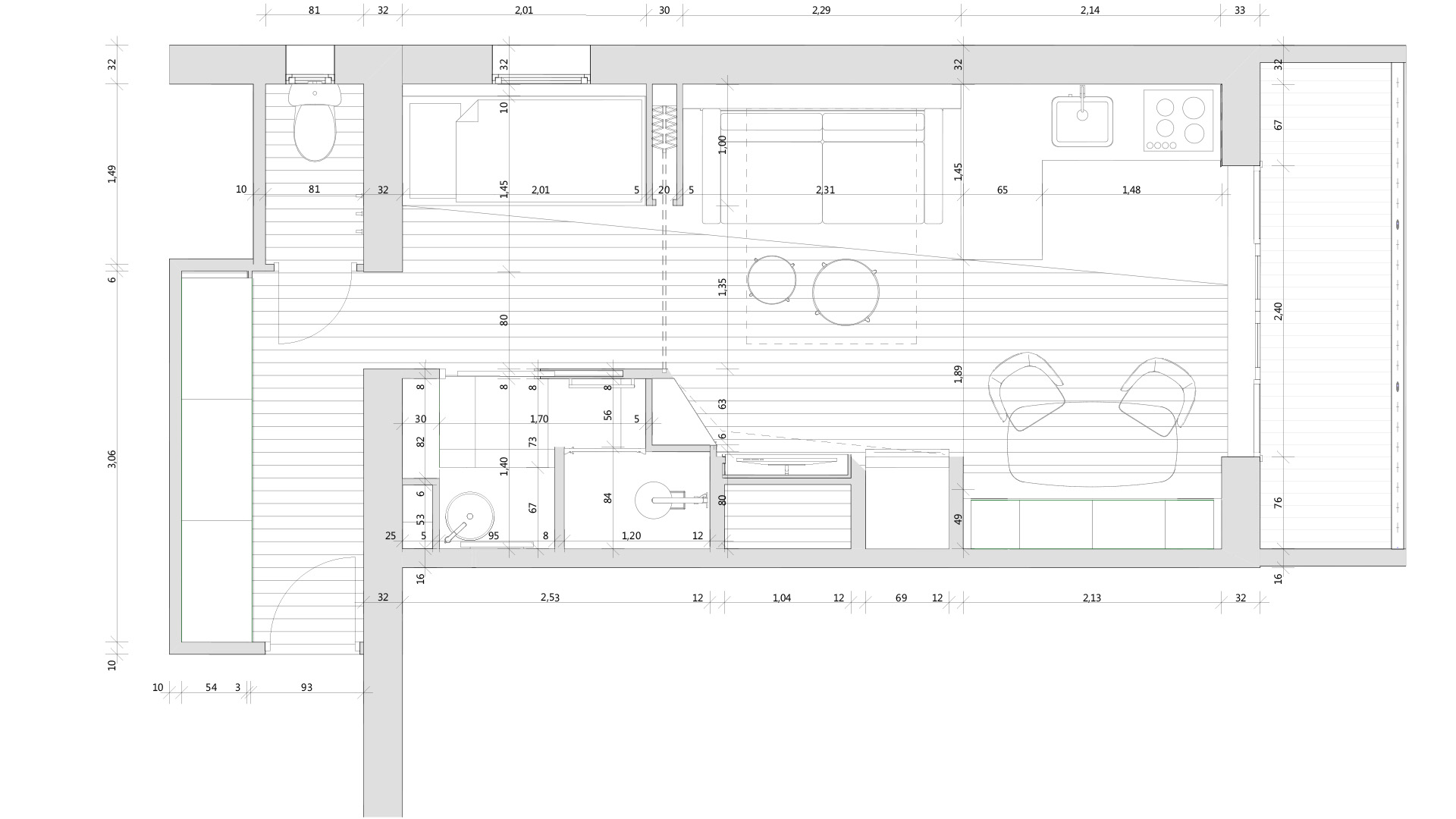
Un plan jour / plan nuit astucieux

Le projet repose sur un système ingénieux de double usage :

-le jour, l’appartement s’ouvre en un grand espace de vie fluide et lumineux,
-la nuit, un jeu de rideau permet de redéfinir les volumes pour créer de véritables espaces intimes.

Grâce à cette modularité, l’appartement offre jusqu’à 4 couchages.

Optimisation et confort

Chaque détail a été pensé pour maximiser le confort et la fonctionnalité :
rangements intégrés, matériaux chaleureux, éclairages doux, et une circulation fluide malgré la compacité du lieu.
Le résultat : un refuge contemporain, à la fois pratique, accueillant et élégant, idéal pour profiter de la montagne en toute saison.

Un petit espace, de grands volumes

Grâce à une conception sobre et ingénieuse, cet appartement de 30 m² parvient à offrir de véritables espaces de vie généreux, tout en s’adaptant aux rythmes de ses occupants.
Un exemple de design alpin contemporain, où modularité et confort s’accordent harmonieusement.

Les Deux-Alpes
Appartement réhabilitation architectes Vincent Raes Paul Kaucher
Plan nuit
iia plan nuit
I'M IN ARCHITECTURE
Vue de la grande pièce de vie en journée
I'M IN ARCHITECTURE
Salle à manger
I'M IN ARCHITECTURE
Salle à manger et nombreux rangements
I'M IN ARCHITECTURE
Espace cuisine
I'M IN ARCHITECTURE
Espace cuisine
I'M IN ARCHITECTURE
Vue sur la salle à manger
Les Deux-Alpes
Plan jour de l'appartement
Plan nuit