Saint-André-de-l’Eure (27)

Maison d’Accueil Spécialisée - Home Soléane

La future Maison d’Accueil Spécialisée Home Soléane accueillera 66 résidents : 42 adultes polyhandicapés et 24 adultes avec troubles du spectre autistique. Cette infrastructure s’inscrit dans une démarche architecturale pensée pour le confort des résidents, la durabilité et l’intégration urbaine.

Conception et organisation des espaces

Le projet s’articule autour d’une organisation progressive des espaces, des lieux partagés vers des espaces privés. Cette conception favorise un sentiment de sécurité et de bien-être grâce à des transitions douces, intégrant patios, sas et circulations éclairées naturellement.

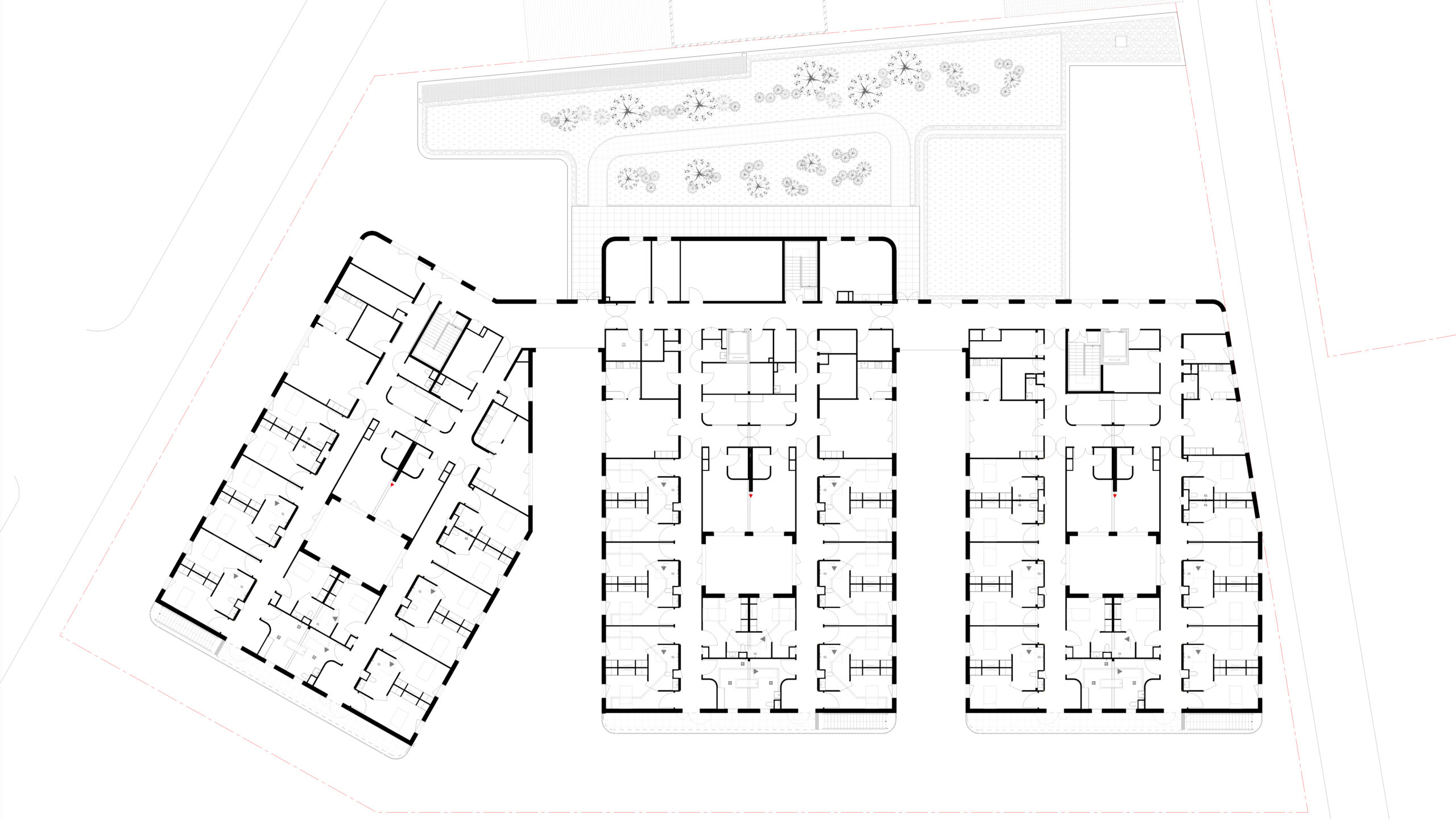
  • Aile polyhandicapés : 6 services regroupés en 3 unités au premier étage.
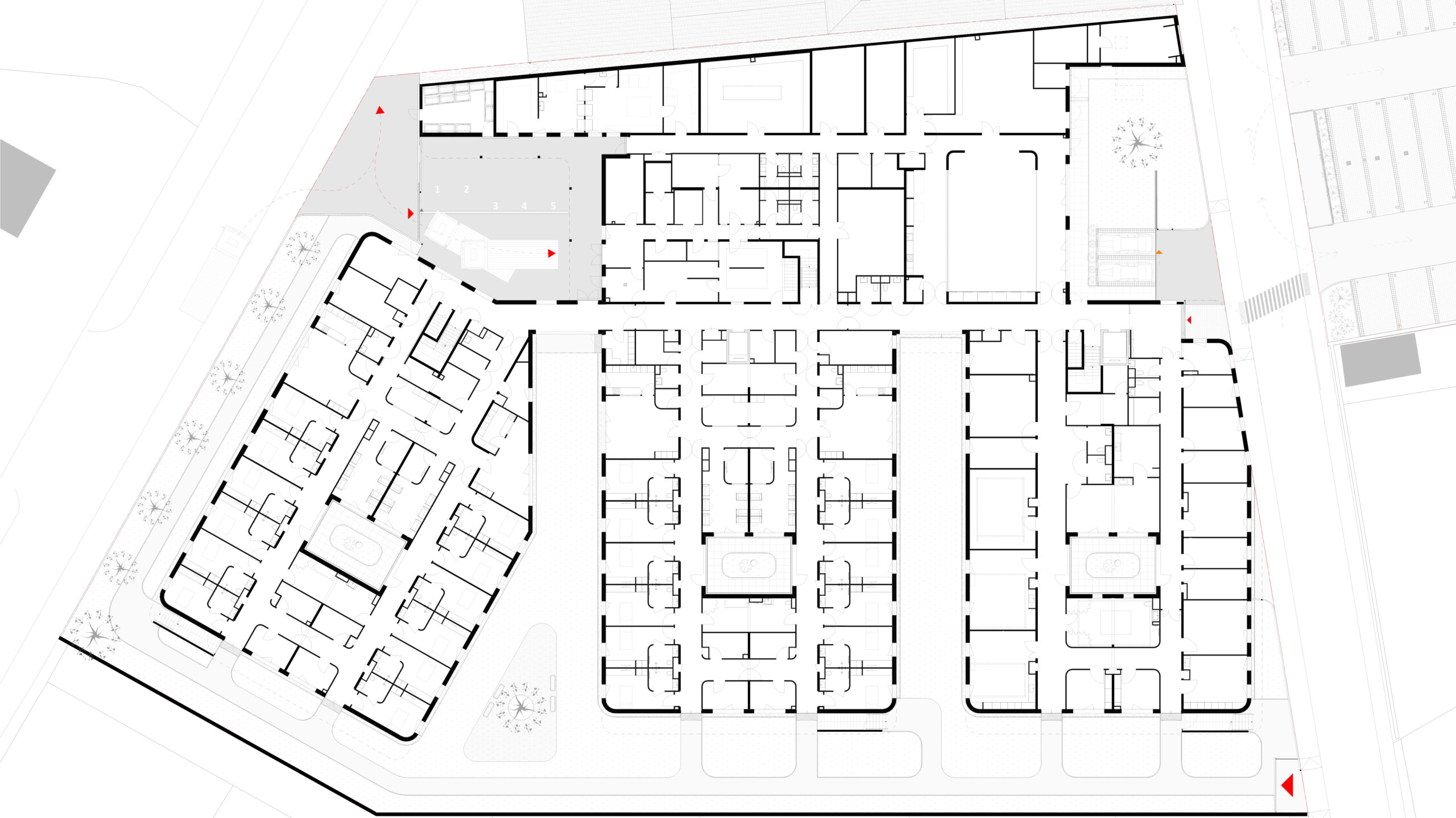
  • Aile troubles du spectre autistique : 4 services en 2 unités au rez-de-chaussée, adaptée aux besoins spécifiques des résidents.
  • Parties communes : zones administratives, médicales et logistiques centralisées pour optimiser les flux et faciliter l’accueil des familles.

Les toitures végétalisées et patios arborés offrent une connexion visuelle avec la nature et préservent l’intimité des résidents.

Aspects techniques et durables

  • Bâtiment durable : conforme à la norme RE2020, avec toitures végétalisées sur 80 % et panneaux solaires.
  • Matériaux adaptés : murs en brique isolante et cloisons renforcées, avec un traitement arrondi pour une continuité des espaces.
  • Espaces verts : 1703 m² de pleine terre, 9 arbres plantés, et liaison avec un jardin public.

Accessibilité et stationnement

Le parking réaménagé compte 42 places (dont 6 PMR), avec des matériaux perméables et des espaces pour vélos.

Un lieu adapté et accueillant

La Maison d’Accueil Spécialisée Home Soléane privilégie l’autonomie et la sécurité des résidents tout en offrant des espaces lumineux, connectés à la nature et pensés pour une utilisation confortable par tous, résidents, familles et personnel.

Capacité d’accueil

66 résidents : 42 adultes polyhandicapés

24 adultes avec troubles du spectre autistique

Confort & bien-être

Espaces conçus pour la sécurité, l’intimité et l’autonomie

Circulations lumineuses éclairées naturellement

Connexion à la nature

Un bâtiment durable et responsable

80 % de toitures végétalisées et panneaux solaires

2400 m² d’espaces verts, 9 arbres plantés, jardin public à proximité

Accessibilité & mobilité

Parking réaménagé de 42 places (6 PMR)

Espace vélos

Accès facilité pour tous

Un lieu accueillant, pensé pour tous

Confort, sécurité et bien-être pour résidents, familles et personnel

Lieu d’inclusion et de partage, intégré dans son environnement urbain

I'M IN ARCHITECTURE
Schéma de principe
I'M IN ARCHITECTURE
Axonométrie générale
I'M IN ARCHITECTURE
Organisation des flux et des espaces verts
I'M IN ARCHITECTURE
Vue depuis la départementale N°833
I'M IN ARCHITECTURE
Vue du jardin intérieur des personnes atteintes d'un trouble du spectre autistique
I'M IN ARCHITECTURE
Vue du jardin intérieur des personnes atteintes de polyhandicap
I'M IN ARCHITECTURE
I'M IN ARCHITECTURE
I'M IN ARCHITECTURE
Vue générale du projet
I'M IN ARCHITECTURE
Vue depuis le Chemin de Crieuzel
I'M IN ARCHITECTURE
Vue depuis le Chemin de Crieuzel
I'M IN ARCHITECTURE
Chantier détail de façade moucharabieh
I'M IN ARCHITECTURE
Détail de façade
I'M IN ARCHITECTURE
Circulation d'une unité de vie
I'M IN ARCHITECTURE
Patio
I'M IN ARCHITECTURE
Pose du revêtement de façade
I'M IN ARCHITECTURE
Plan de masse
I'M IN ARCHITECTURE
Plan de Rez-de-Chaussée
I'M IN ARCHITECTURE
Plan R+1