Samoreau

Samoreau (77)

Maison individuelle

Entre murs et végétation

Implantée sur une parcelle tout en longueur, cette maison de 266 m² s’inscrit dans un dialogue constant avec son environnement naturel.
Dès la conception, la volonté a été de préserver au maximum la végétation existante, en évitant de saturer l’emprise au sol disponible.

Plutôt que de construire massivement, le projet s’articule entre murs et nature, jouant avec les vides, les alignements et les respirations du terrain.

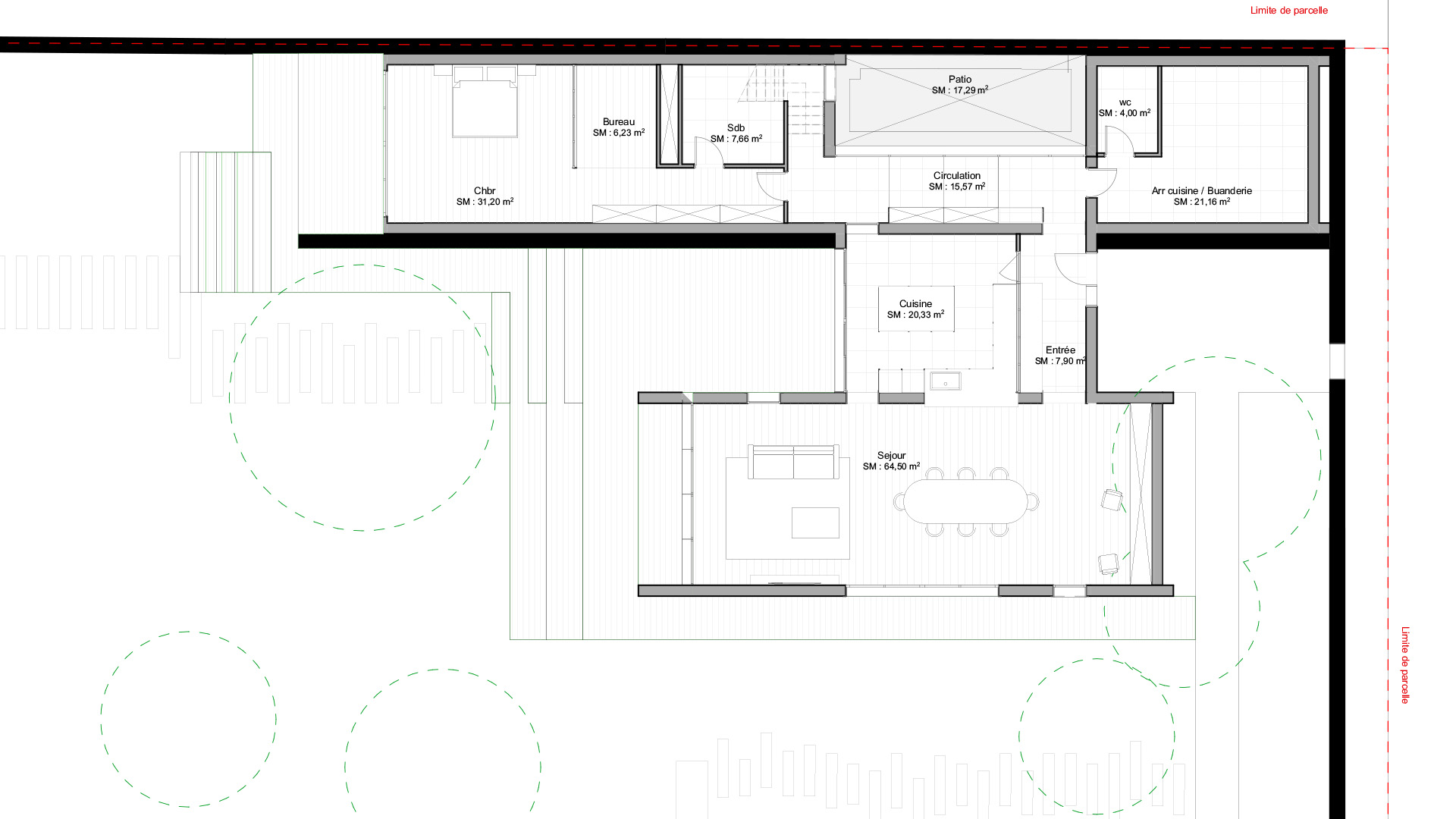
Une organisation en bandes

La maison s’organise selon une composition en bandes parallèles :

-un accès garage clairement identifié,
-un accès piéton distinct et intime,
-au cœur du projet, une séquence d’espaces de vie ouverte sur la végétation.

La cuisine occupe une position centrale : elle relie le séjour d’un côté et un patio intérieur de l’autre.
Ce patio apporte une lumière naturelle généreuse jusque dans la salle de bain, l’arrière-cuisine et la buanderie, offrant à chaque espace une qualité d’éclairage et de ventilation exceptionnelle.

Une silhouette intemporelle

L’architecture reprend la forme iconique de la maison à deux pentes, réinterprétée de manière contemporaine.
Simplicité des volumes, équilibre des proportions et dialogue entre matériaux et végétation donnent à cette maison une présence discrète et harmonieuse dans son paysage.

Plan masse Samoreau iia
vincent raes paul kaucher i'm in
architecte agence architecture paul kaucher vincent raes
paul kaucher vincent raes architectes
I'M IN ARCHITECTURE
Perspective extérieure
I'M IN ARCHITECTURE
Perspective extérieure
I'M IN ARCHITECTURE
Perspective intérieure
I'M IN ARCHITECTURE
Perspective intérieure
Plan masse Samoreau iia
Plan masse du projet
architecte agence architecture paul kaucher vincent raes